Cliente: Coronado Bible Church – Diseño para Grupo Noza S.A.S
Año:2024
Ubicación: Coronado -Panamá
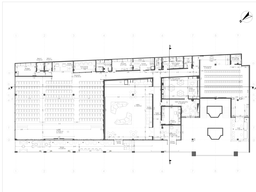
Ante la necesidad de albergar entre 250 y 350 personas (un aumento de aproximadamente el 60% de su capacidad actual) y crear espacios elegantes y acogedores que inviten a participar en sus actividades y permitan el correcto funcionamiento de los servicios ofrecidos a la comunidad, nace el diseño de CBC. Con diferentes ambientes que incluyen: Recepción, Vestíbulo, Auditorio, Terraza, Aula Infantil y Aula Juvenil, Oficina y Zona de Café, además de las áreas de servicio: Almacén, Cocina y Baños.
Un diseño sofisticado, que se destaca por el uso de materiales, una iluminación cálida, líneas limpias con mobiliario y decoración funcionales.










